Vista Cannabis Equity Assessment; Survey Now Open
The City of Vista is in the beginning stages of developing a local cannabis equity program designed to remove barriers to entry into the...
Assemblywoman Laurie Davies Office Grand Opening
By Annie Bader
OCEANSIDE, CA–The grand opening of California Assemblywoman Laurie Davies' new state district office occurred just off of Vista Way, with the month...
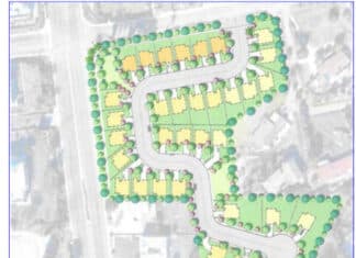
Zone Change to Construct 38 Two-story Townhomes 2112 Sunset Drive...
In accordance with Section 15072 of the California Environmental Quality Act Guidelines, NOTICE IS HEREBY GIVEN that the City of Vista (City) has prepared...
Meet Vista City Manager, John Conley Watch on Velocity
John Conley was appointed as Vista City Manager in March 2023 after serving the City in a variety of roles, most recently as the...
Matagual-Melrose Project Goes to City Council
SOUTH VISTA NEWS
The new residential project of 34 homes, pro-posed by True Life Companies for 560 and 622 So. Melrose, will be presented at...
June Government Affairs Committee Hears from San Diego County Water Authority...
By TR Robertson
The Vista Chamber of Commerce Government Affairs Committee recently listened to a presentation from Efren Lopez, Water Resources Specialist from the San...
Vista Church Transforms From Sermons to Swanky Apartments
Encinitas Real Estate investment firm Cross Real Estate Investors plans to transform the former New Community Church of Vista site into an $85 million...
Santa Fe Senior Village Groundbreaking
This morning, the City Council participated in the groundbreaking of the Santa Fe Senior Village project on North Santa Fe Avenue near the Vista...
Townsite ‘Complete Streets’ Project had Groundbreaking
Townsite Complete Streets Project Groundbreaking was held on Tuesday 2nd at 216 W. Los Angeles Dr. This project will transform approximately 1.2 miles of...
Vista Chamber of Commerce Government Affairs Hears from San Diego County...
By TR Robertson
The May Vista Chamber of Commerce Government Affairs Committee meeting heard a detailed presentation from Jordan Marks, San Diego County Assessor, Recorder...






























